Викладачі кафедри електричної інженерії Євген Руднєв та Юлія Романченко успішно пройшли підвищення кваліфікації в межах професійного тренінгу від Schneider Electric Ukraine.
Навчання було присвячене темі «Проєктування та 3D-моделювання систем електропостачання і автоматизації на платформі SEE Electrical Expert (базовий рівень)» загальною тривалістю 90 годин.
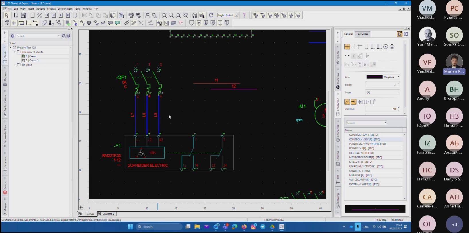
Під час тренінгу викладачі опанували інструменти створення електричних схем у середовищі SEE Electrical Expert, роботу з кабельними з’єднаннями, побудову логічних зв’язків між компонентами та сигналами, 3D-проєктування шаф і панелей керування, а також формування повного комплекту технічної документації для виробництва.

Отримані компетентності будуть інтегровані в освітній процес кафедри електричної інженерії — під час викладання фахових дисциплін, виконання курсових та кваліфікаційних робіт, а також підготовки здобувачів вищої освіти до практичної діяльності з використанням сучасних цифрових інженерних платформ.
За результатами навчання викладачі отримали сертифікати Schneider Electric Ukraine, що підтверджують підвищення їхньої професійної компетентності у сфері електропостачання та автоматизації.


СНУ ім. В. Даля послідовно підтримує професійний розвиток науково-педагогічних працівників та впровадження сучасних цифрових технологій у підготовку майбутніх фахівців.

